




0.06-Acre Development Land for Sale in Central Scotland
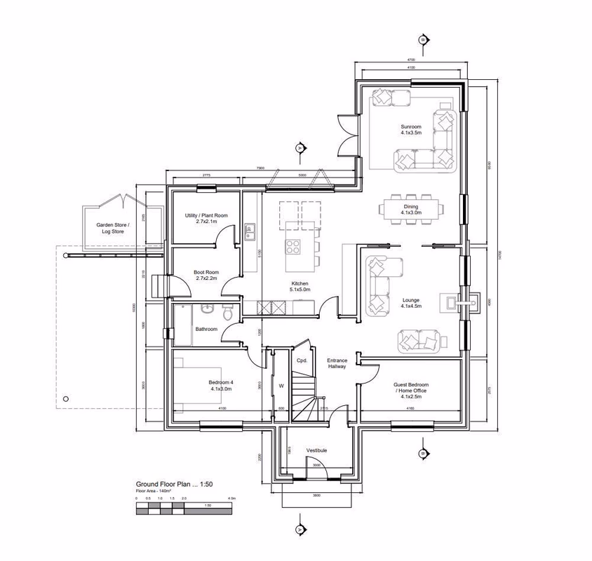
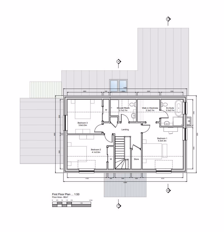
Full planning granted via Perth and Kinross Council, ref 23/02082/FLL. Granted 7th Feb 2024. Permission granted for 1 single dwelling house, with accommodation as follows: Ground Floor: Entrance vestibule. Open-plan kitchen/dining room/sunroom, utility, boot room, bedroom 4,...
0.06-Acre Development Land for Sale in Central Scotland
Description
Full planning granted via Perth and Kinross Council, ref 23/02082/FLL. Granted 7th Feb 2024. Permission granted for 1 single dwelling house, with accommodation as follows: Ground Floor: Entrance vestibule. Open-plan kitchen/dining room/sunroom, utility, boot room, bedroom 4,...
Contact Agent
Smart Picks — Professionals Relevant to This Land
Based on this property's key features, here are the specialists you may want to consult as part of your due diligence: land agents, rural solicitors and planning consultants.

Land Agents
Essential for navigating the land market, finding buyers, and securing the best price.

Rural Solicitors
Significant investment (£175K+) requires legal expertise for conveyancing, title checks, and transaction security.

Planning Consultants
Planning-sensitive site needs expert guidance for applications and development strategy.
Location
Crook of Devon KY13 OUL